Domaine de la Chapelle à Dorlisheim

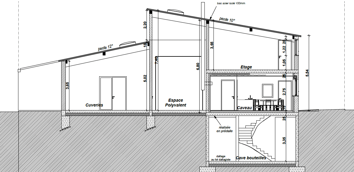
En sortie d’exploitation, ce projet en extension d’un hangar vinicole existant consiste à créer une haute cave de stockage enterrée, un nouvel hangar agricole en organisant l’existant en un espace de réception vendanges, un espace central prestataires et polyvalent desservant un bâtiment destiné aux cuveries, un espace d’étiquetages et un caveau de dégustation. A l’étage divers espaces de stockages en mezzanine et en potentiel développement touristique.
Exploitation qui se développe aujourd’hui grâce M. Olivier JOST, fils et petit-fils des anciens exploitants.
L’ensemble est desservi intelligemment par une cage d’escalier commune accessible depuis une porte secondaire et un monte-charge permettant les déplacements verticaux de charges lourdes depuis la cave de stockage bouteilles et sur les deux côtés vers l’espace d’étiquetage en rez-de-chaussée et proche du caveau de vente mais aussi jusqu’à l’étage pour les plus petits stockages et matières sèches.
Les travaux avaient démarré courant février 2025 et l’objectif de pouvoir vendanger en septembre a été respecté.
Le bâtiment a été entièrement livré et il est entièrement opérationnel.
Nous conseillons particulièrement Le Pinot Noir Lieu-dit « Kalkgrube » mais aussi le Muscat produit par Le Domaine de la Chapelle !
Visiter le site internet Domaine de la Chapelle à Dorlisheim :

